




本主要試驗設備為根據用戶要求特制的設備,其功能是在一定空間內模擬一種或多種氣候狀態,為試驗提供環境條件和測試手段。
一、設計依據及指導思想
1.依據用戶技術條件、試品形式、試品材質、試品最大外形尺寸、最重件重量等相關技術要求等資料編制。
2.同時依據相關所需設備對應的國家標準進行設計。
3.試驗箱結構設計先進合理,配套產品和功能元器件具有國際先進水平,能夠適應長期、穩定、安全、可靠的生產需求。能夠滿足用戶檢測要求,且使用、操作、維修方便,使用壽命長,造型美觀,有良好的用戶界面,使用戶的操作和監測都更加簡單和直觀。
4.設備主要部件選用國際知名品牌廠家的優質產品,確保整機的質量和性能。關鍵配置和電器元器件選用進口或合資企業的產品,以確保設備的先進性、穩定性和正常使用壽命。
5.采用成熟可靠的新技術、新工藝,以降低能耗、節約成本、提高質量。
6.電氣控制制作安裝,符合國家有關電氣安裝標準,運行可靠,注重電氣防護及連鎖功能。
二、工程承接形式、范圍
1.項目承接設計、制作、外購元器件、安裝及調試工作均由承攬方(供方)負責。
2.設備的公用系統(動力電源等)由需方接到供方的規定位置,而消防、照明、通風等也由用方負責。
3.設備的土建基礎由用方按供方的要求制作。
三、模擬氣候試驗系統組成:
⑴溫濕度試驗系統,⑵鹽霧試驗系統,⑶噴淋試驗系統,⑷日照試驗系統,(5)CO2大氣污染氣氛試驗系統.
四、主要技術規格及參數:
工作室內尺寸:3300mm×4500mm×2800mm(深×寬×高)
溫度范圍:-25℃~+80℃
溫度偏差:≤±2℃
溫度波動度: ≤±0.5℃
變溫速率:1℃/min
濕度范圍:30%RH~98%RH
濕度偏差:±3.0%RH(濕度 >75%RH)±5.0%RH(濕度 ≤75%RH)
濕度波動度:±3%RH
紫外線燈管類型: 進口熒光紫外燈管UVA-340
紫外燈波長范圍: 280-400nm
輻射強度:60w/m2
試件與燈管中心距:500-800mm(上下可調)
鹽水濃度: 3~5%
霧粒大小:(5~10)μm
噴霧形式:氣流式
鹽霧沉降量:1~4ml(可調)
人工雨方向:垂直向下
噴水孔徑:1-5mm/min
降雨水壓:80KPa-375KPa可調
水流供水量:≥1000l/h
淋雨量:200mm/h
淋雨周期控制:既可手工控制淋雨,也可自動控制周期淋雨
CO2氣源用鋼瓶裝99.9%以上CO2氣體
CO2氣體濃度可調范圍:0~20% 控制精度 ±3%
CO2測量與控制 時間流量,體積比來控制
預留化學氣體功能端口
風源 :離心風機產生的自然風
風速 :0.5-2.5m/s

五、主要配置要求
(1)室體結構
1.結構:采用組合拼裝式庫板結構,它將直接構成一個密閉的試驗空間。所有材料均選用優質的原材料,并按照可靠的質量保證標準制作。根據用戶要求的試驗室尺寸,預先制作并灌注保溫材料發泡。庫板在發泡前預埋特殊設計加工的防變形鋼木骨架。保溫庫板各關鍵部位均受嚴格控制,以方便運輸,現場快速組裝。免去日后繁雜的維修保養。
為延長設備的使用壽命,庫板外壁材料為£=1.0 SUS304不銹鋼發紋板,內壁材料為進口£=1.2 SUS316L不銹鋼板,底板為£=2.0SUS316L不銹鋼板(備注:SUS316L材質耐酸堿、耐鹽霧)庫板在發泡前預埋特殊設計加工的防變形鋼木骨架。內層灌注10cm厚的高密度阻燃聚胺脂發泡專用保溫層,具有特效絕熱隔音性能,使試驗室的運行成本顯著低于其它材料。
2.大門:雙開大門1300×1800mm,大門內外板材料與保溫材料均與庫板一致,在門和門框的周圍預埋有加熱絲,加熱絲的開啟由設備根據不同的運行工況自動開啟,保障設備在長時間低溫環境下大門不凝露和不結霜,門鎖采用優質新型雙聯集裝箱專用鎖具。
3.引線孔:電纜孔可設定若干個,標準直徑尺寸為50、100、150mm任選,由用戶選擇,安裝位置由用戶指定,電纜孔外有蓋子,不用時可合上,孔內有硅橡膠軟塞,線纜可由獨立進出,也可穿越軟塞進入室體。
4.平衡裝置:箱體安裝有氣壓自動平衡裝置,保障設備在升溫、降溫、恒定試驗時箱內氣壓始終與外界的保持基本一致。
5.防潮燈:箱內安裝有防潮照明燈6盞,便于觀察箱內的試驗樣品,照度≥300Lux。照明燈在箱外控制面板上有開關控制。
6.強力地板:強力地板通孔直徑φ80,孔間距600。
7.排 水:箱內通道底部采用交叉V型沖壓工藝,供凝露水、結霜融化水、淋雨試驗用水、鹽霧積水和清洗水的有效收集和及時排出試驗室外。
(2)溫濕度試驗系統
1加熱系統
1.1加 熱 器:采用鈦合金加熱器,配置合理的表面發熱負荷量,無明火,壽命長,是設備的主要熱源,為設備升溫和溫度點冷熱平衡提供所需的熱量。
1.2.加熱控制方式:PID控制方式,使用無觸點等周期脈沖調寬SSR(固態繼電器)
1.3.通道熱保護裝置:此裝置在設備保溫板的臨界允許溫度以下就報警,且切斷加熱器,從而達到保護設備和樣品的目的。
2.制冷系統
制冷系統的設計應用能量調節技術,既能保證制冷機組正常運行,又能對制冷系統的能耗及制冷量進行有效的調節,使制冷系統保持在最佳的運行狀態。采用平衡調溫調濕(BTHC)法,既在制冷系統在連續工作的情況下,控制系統根據設定之溫度點通過PID自動運算輸出的結果去控制加熱器的輸出量,最終達到一種動態平衡
2.1.壓縮機:采用德國GEA BOCK半封閉壓縮機,確保設備降溫試驗時的溫度變化速率和濕度試驗。
2.2.制冷方式:機械壓縮復疊式制冷
2.3.冷凝器:水冷冷凝器。
2.4.蒸發器:翅片式換熱器。
2.5.電磁閥:意大利卡士妥
2.6.干燥過濾器:丹麥丹佛斯
2.7.節流裝置:熱力膨脹閥、毛細管。
2.8.制冷劑:綠色環保制冷劑R404A/R23
2.9.冷卻塔:明新冷卻塔(最終由用戶確定是否需要配備)
2.10.冷凍機油及進口油分離器:
冷凍機油的作用:
①潤滑作用:保證制冷壓縮機的正常潤滑、減少機械磨損和降低動能消耗;
②降低溫度:冷凍機油在制冷壓縮機中不斷循環,帶走壓縮機工作中產生的大量熱量,從而提高壓縮機的機械效率和使用可靠性;
③密封性:在軸封及氣缸和活塞間起密封作用,提高軸封和活塞環的密封性能,防止制冷劑泄漏。
2.11.油分離器的作用:
①壓縮機的排氣帶有冷凍機油,在壓縮機與冷凝器之間裝設油分離器,用來分離制冷劑蒸氣中挾帶的冷凍機油,使冷凍機油返回壓縮機曲軸箱。
因此制冷壓縮機是否有足夠的合理的高品質冷凍機油,將直接影響其壽命,冷凍機油隨制冷劑進入制冷系統中,特別是進入冷凝器、蒸發器后,將在傳熱表面形成油膜,從而影響換熱設備的換熱效果,并且容易引起膨脹閥和毛細管油堵,如果制冷系統回油不好,可能造成壓縮機缺油而導致壓縮機線圈燒毀或缸體損壞。因此,在制冷系統中必須裝設安全可靠的油分離器,我公司選用了國際知名品牌德國產ESK 油分離器或歐美“艾高”ALCO油分離器和進口環保制冷劑專用冷凍機油;
2.12.板式換熱器,板式換熱器結構特點:
①換熱器由傳熱板片、蓋板(壓緊板)和接管壓制成人字型波紋的耐腐蝕不銹鋼薄片組成,相鄰的一對不銹鋼片波紋方向相反,波紋脊線彼此相交而形成接觸點,由于復雜的接觸交差網絡通道使兩側流體形成紊流,加大提高了換熱效率,大大降低了系統阻力。
2.13.板式換熱器的優點:
①結構緊湊、體積小、重量大約只有相同傳熱面積的殼管式換熱器的25%;板式換熱器的當量直徑小,流動擾動大,在較小的雷諾數下及可形成紊流,因此傳熱系數高,一般為殼管式換熱器的1.5倍;制冷劑充注量小。
②我公司在制冷系統中采用了目前世界上先進的瑞典產AIFALAVAL板式聯釬焊式換熱器,克服了以往國產低溫設備此部件的尺寸大、換熱差、效率低等缺點。
做工考究的低溫工藝:
①低溫連接管采用優質無氧銅管、充氮焊接、高保壓防泄漏工藝確保焊接質量;
②管路的長度、坡度都經過計算,以達到系統最佳匹配;
③制冷管接頭采用美國“樂泰”厭氧螺紋密封膠,基本杜絕制冷
2.14.泄漏現象;
① 采用了熱氣旁通和液體旁路系統,可對制冷系統能量進行有效調節,達到節能降噪的目的;
② 在制冷系統中,采用熱氣除霜,可進行連續的低溫運轉。
2.15.壓縮機安裝的防振降噪設計:
①壓縮機運轉產生的振動,可直接傳給箱體底座,由彈性波的形式,沿房屋結構傳到室內,又以噪聲的形式出現,為了減振并降低壓縮機運行時產生的噪音,采用非剛性連接(彈簧避振器),來達到減振降噪的目的;
②在壓縮機的連接管上安裝美國“帕利斯”PACKLESS 避震軟管;
3.濕度試驗系統
3.1.加 濕 器:鍋爐電加熱蒸汽加濕
3.2.加濕控制方式:PID控制方式,使用無觸點等周期脈沖調寬SSR(固態繼電器)水位控制裝置,加熱器防干燒裝置
3.3.除濕方式:制冷壓縮機制冷除濕
(3)鹽霧試驗系統
1.供氣系統

1.1.本試驗室采用氣流式噴霧,因此要有供氣系統。供氣系統的作用就是連續供給鹽霧試驗室所需有壓力的新鮮、潔凈、濕潤的熱空氣。本室以用戶單位的管道壓縮空氣作供氣氣源,環境大氣經空氣壓縮機壓縮成高壓空氣后進入貯氣罐,通過輸氣管道接入指定位置。
1.2.為了保障進入噴咀的空氣為潔凈帶濕度的熱空氣,需將壓縮機產生的氣體進行油水分離,油水分離過濾器采用預過濾及精過濾、除油過濾三級過濾方式,高分子化合材料制成的濾芯有效地去除壓縮空氣中的油、水及埃粒子。放在進入飽和器前的位置,力求做到盡最大的能力除油污。
1.3.由于噴霧壓力只需0.07~0.14Mpa,過濾后的空氣需進行二級減壓,第一級將空氣減至0.2~0.3 MPa,第二級根據霧量的大小,調至0.07~0.14MPa,以使經噴咀噴出的噴霧壓力在規定的范圍之內。
1.4鹽霧試驗規定進入試驗室的空氣要有一定的溫度和濕度,因此在壓縮空氣進入室體前增加一套加熱加濕裝置,即空氣飽和器。飽和器溫度值受主控制板控制,根據不同的環境溫度及試驗溫度對噴霧壓力、溫度進行調整。飽和器為一受壓容器,耐壓≥0.6MPa,用不銹鋼制作,飽和器內裝去離子水用電熱管進行加熱。設有水位計、進水閥、排氣閥、排污閥、傳感器測試孔等。三通接頭一頭接通往噴咀的管路,一頭接壓力表。壓縮空氣進入飽和器后通過去離子水或蒸餾水,再次進行過濾。而后與筒內去離子水或蒸餾水產生的水蒸汽混和,以使進入噴咀的空氣為接近箱內試驗溫度、潔凈濕潤的空氣。
供氣系統的管道材料為耐壓PU管。所有暴露在空氣中的管道以及埋在外層框架的管道均需用不同的保溫材料進行保溫。
1.5飽和器內水的補充:由于經飽和器內流出的空氣是濕熱空氣,會帶走一部分水蒸氣,長時間工作會不斷地消耗水,需要定時補充水,此外,由于噴霧狀態下,飽和器內有壓力,進不去水,就得暫時停止供氣,進水也非常緩慢,在此情況下需:在飽和器上設置二支電磁閥。其中一支為進水電磁閥,另一支為出氣(通氣)電磁閥,進水時二支電磁閥同時打開。也可以手動進行加水。
2.鹽水補給系統:
2.1氣流噴霧要連續進行,鹽水的連續自動補給是必不可少的。鹽水補給系統就是為達到這一目的而設置的,鹽水箱一般都放在室體上部,如不進行適當的控制,要么鹽水很快流光,要么就會供不上噴霧的需求。
2.2為了保持一定的虹吸高度,需要將鹽水虹吸水位保持在200~500mm范圍內。配置好的鹽溶液貯存在一塑料容器內,靠磁力泵打到鹽水補給容器內,該鹽水補給容器布置在外層框架上,靠自動液位控制器指揮磁力泵工作。將水位上下限保持在10mm以內。總輸出量通過流量傳感器反饋至微機測控系統。
2.3為了使進入噴咀的鹽溶液溫度與室內溫度接近,需在鹽水補給箱內加裝加熱器,由于鹽水的腐蝕性能及要求較高的溫度,鹽水補給容器為一PVC容器,用專用的溫度控制器來控制,也可以用微機主控來控制。使其進入噴咀的鹽水符合要求。
3.噴霧系統:
3.1噴霧裝置的功能就是將鹽水補給系統送來的鹽水利用氣源系統供給的高壓空氣從噴咀中高速噴射時產生的引射作用,通過虹吸原理將鹽水吸上來與空氣混合后產生迷散的霧狀,由于霧中含有一些未霧化的水滴,所以噴出的霧狀氣流不能直接引入到試驗室體,而應先打到一個鹽霧擋板上,將未霧化的水滴打碎成霧或將多余的鹽霧其擋回來,使噴出的霧是真正不含水滴的細霧。鹽霧沉降量的大小直接與鹽水補給和氣源供氣壓力的高低、擋板的角度有關。
3.2選用方便拆裝的快拆式耐腐蝕噴嘴。材料采用不銹鋼
(4)噴淋試驗系統
模擬天然降雨,天然降雨的主要特征包括;(1)降雨量、降雨強度;(2)降雨分布的均勻性;(3)雨滴直徑大小和分配;(4)雨滴的終點速度等。
人工模擬降雨強度與降雨噴頭的供水壓力有關,可以通過調節供水壓力來控制降雨強度的變化。一般采用實測的方法,確定與降雨強度有關的其它主要因素,并先固定供水壓力,在給定的供水壓力下,根據流量計的流量與降雨面積,計算出降雨強度。
人工模擬噴淋試驗可以通過加入不同的溶液(如加入稀硫酸變成酸雨,加入鹽變成海水)來取得不同的試驗效果
1. 雨滴直徑:
雨滴直徑大小和分配是降雨動能的重要參數之一,對于研究降雨侵蝕力具有特殊的意義。天然降雨的雨滴直徑,一般在0.1~6.5mm之間,其中直徑小于1.0mm的雨滴占絕大多數。
雨滴降落點速度又叫雨滴末速度或雨滴的打擊速度,是降雨動能的重要參數之一。生成的雨滴靠自身的重量,在空氣中以自由落體狀態向下運動。
不同的雨滴終點速度決定了雨滴對被試品的打擊程度。
雨滴直徑降落終點速度一覽表
|
雨滴直徑d(mm) |
0.25 |
0.50 |
0.75 |
1.25 |
1.50 |
|
2.00 |
3.00 |
4.00 |
5.00 |
6.00 | |
|
終點速度V(m/s) |
0.88 |
1.95 |
2.69 |
4.79 |
5.26 |
|
6.90 |
8.06 |
8.62 |
9.11 |
9.30 |
2. 噴淋裝置
2.1垂直向下,采用數排噴淋管路。滿足不同的噴淋面積及降雨強度。
2.2管道材料采用PPR管,主管徑DN80,支管DN32,控制閥門采用蝸輪蝶閥。 管路中設過濾器2組,穩壓閥1組,穩壓閥前設壓力表兩個,噴淋管末端設1個壓力表。兩組過濾器交替工作,保證設備正常運行。支管排列均勻,保證淋雨段內降雨均勻。
2.3噴嘴:采用臺灣長源噴霧系統公司生產的PP噴嘴。噴嘴性能符合GB/T—12480-1990要求. 噴嘴噴射狀態為實心錐狀水柱。噴嘴在噴淋架頂上方均勻布置,不存在死區。
2.4水泵:采用低噪音不銹鋼防腐水泵,噪音≤75分貝。可手動切換。壓力表置于水泵出口處。
3. 流量計:4—20mA輸出的流量計
4. 壓力計:4—20mA輸出的壓力計
(5)日照試驗系統
采用熒光紫外燈模擬陽光對材料的老化,與用氙燈作為模擬陽光,對材料進行老化,有異曲同工之處,氙燈可模擬完整的太陽光譜,其包括紫外光、可見光和紅外光波段。
紫外燈是單一紫外光譜,出廠時就決定它的特性。盡管紫外線(UV)能量只占陽光總能量的5%,但是它卻是造成戶外產品性能下降的主要因素。其中UVA-313燈管的光譜從280nm到400nm范圍內,非常好地模擬陽光紫外線,UVA-313的測試結果與戶外曝曬的相關性在所有紫外燈中是最佳的。UVA-313燈管發出的短波紫外光比一般地球表面的陽光紫外線要強,它可以最大程度地提高試驗速度。
優點:
1. 用于模擬直射陽光,可以持續檢測光照強度,并自動調節燈的光強輸出從而使光強始終保持在設定值。
2. 熒光紫外燈固有的光譜穩定性,使其輻照強度控制變得相對簡單。長時間使用紫外燈管的光譜結構不會發生顯著變化,從而提高了測試結果的重復性。

(6)CO2 大氣污染氣氛試驗系統
1.氣源:
鋼瓶裝CO2氣體濃度達99.8%,即使經過減壓那怕是打開釋放0.1S時間的氣體,濃度也會超出幾百倍;因此,需要將純度級的氣體進行分瓶稀釋;并對每瓶稀釋后的氣體進行標定。
試驗氣體由各種具有化學活性的成份組成,因此容易被吸附、吸收或與樣品室和管道所用的結構材料進行化學反應。通常要加入比規定量高得多的氣體,進入混合氣體內,以便在工作空間內獲得規定的氣體濃度。
試驗氣體最好從試驗箱的底部開口位置導入,從相對應的頂部開口排出。在開口前的位置可以使用緩沖裝置,以改善空氣流動的均勻性。
2.濃度測量:
目前,市場上流通的化工氣體測量傳感器,分為三種類型:
l 固態型(最好,壽命最長,漂移量低)
l 紅外型(一般,壽命中等,漂移量中等)
l 化學型(差,壽命幾個月,漂移量大)
實踐證明,這一類傳感器應用于檢測大氣中的氣體含量,因含量較低,壽命還有保障;但如果用在高濃度的環境,特別是高溫、低溫、濕、雨、紫外等高嚴酷惡劣的環境中,壽命與可靠性就沒保障。
因此,建議只作為校正室體氣體濃度及測定瓶裝氣體的濃度用。或在不做試驗時取出,以延長它的使用壽命。
CO2濃度測量: 1套,選用進口CO2濃度傳感器。
SO2濃度測量:1套,選用進口SO2濃度傳感器。
NOx濃度測量: 1套,選用進口NOx濃度傳感器。
3.質量流量計:
這是一種行之有效的精確輸送氣體的流量計,CQ2 的濃度為容積比,因此,稀釋并經標定后的CQ2 氣體與凈化、加熱干燥后的空氣經計算機計算流量后;經質量流量計進入混合腔內充分混合后,輸入室體內,保證室體內的CQ2保持在規定的值內。
4.質量流量計具有下述優點:
4.1高精度,快響應
產品準確度高,精度可達±1.0%S.P,響應時間≤0.8sec
4.2極低零漂及溫漂
采用的恒功率傳感器原理,在溫度變化時進行相應的補償,從根本上抑制了流量計的零漂現象,保證了傳感器線性,在沒有零點校正時<0.6%F.S./年,溫度系數小于0.02%F.S./℃(zero),0.05%F.S./ ℃(span).
4.3全金屬密封和高質量金屬表面
采用專門的金屬表面處理技術,與氣體接觸的表面金屬材料全部使用316LVV,嚴格按照SEMI標準生產制造。
4.4良好的兼容性
支持±11~±16v雙電源,+11~+28v單電源供電;數字,模擬輸入輸出;產品尺寸符合國際通用的SEMI標準,RS485,DeviceNet通訊方式。
4.5完善的功能
產品具有多氣體多量程功能、自動歸零功能、報警功能、軟啟動功能、延遲功能及功能強大的免費客戶端使用軟件。

5.氣體輸送管路:
氣體輸送系統、管道、閥門等對氣體的吸附或吸收程度不應該影響試驗的效果。
將腐蝕性氣體導入樣品室之前,最好使用混合室。各種腐蝕性氣體的濃度在它們相互混合時,應避免相互之間不必要的化學反應。
6.排放氣體處理:
廢氣必須經環保處理后方能排到大氣中去,可以采用
(1)活性炭吸附法:將流經的廢氣進行吸附。
(2)噴淋法:設立一個類似冷卻塔的裝置,氣體從塔的下方經阻尼材料向上走,配比后的起中和藥水成霧狀,進行噴淋與氣體接觸,吸收殘余的CO2氣體。
(7)箱內循環風系統
本方案采用傳統的環境模擬試驗設備的熱平衡調溫調濕調節模式。即設計一個內置式空氣混合調節腔,腔內安置蒸發器、加熱器、加濕管、離心風機。空氣調節腔置于試驗室的一頭或一側,空氣在通道下部被吸入,再自下而上經蒸發器冷卻、加熱器加熱,再經長軸電機驅動離心風機,然后將經調節好的溫濕度空氣送入試驗區內,循環往復,逐步使室內達到試驗要求。
采用上送下回風方式,以達到大容積室體下的溫濕度均勻性,滿足試驗要求。
1.空氣控制方式:強制循環通風,平衡調溫調濕方法(BTBC)。該方法指制冷系統在連續工作的情況下,控制系統根據設定之溫濕度點通過PID自動運算輸出的結果去控制加熱器加濕加熱輸出量,最終達到一種動態平衡。
2.空氣循環裝置:單循環內置循環風道及長軸通風機,使用高效的制冷機和能量調節系統,通過高效通風機進行有效的熱交換,達到實現溫度變化之目的,通過改善空氣的鼓風氣流,提高了空氣流量及加熱器和空氣表冷器的熱交換能力,通過出風口可調風栓的調節,從而大幅改善了試驗箱的溫度均勻性.
3.通道骨架:支撐需要安裝在通道內的部件。
4.風 機:采用低噪音離心風輪,是室內攪拌空氣的動力源,風輪把工作室內通過蒸發器和加熱器混合的空氣進行攪拌,然后送出調節腔,讓空氣在室內循環,周而復始。
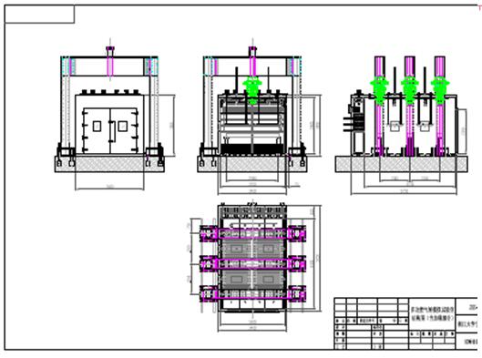
(8)反力架(加載機構)
1.僅設計室體內部的三個支架及其配件,外部承載機構由使用方負責。
2.內部支架采用“工”字鋼,與試驗室底面錨固。
3.加載機構選用上海液壓廠產的分體式100T油壓千斤頂,并配備壓力傳感器。
4.內部支撐架選用高強螺桿M65﹡2000cm,并有傳力桿。
5.所有鋼構件進行防腐處理。
六、計算機中央控制系統配置和功能

(圖片僅供參考,以實物為準)
(一)工控機系統主要配置:
1、工控機:臺灣“研華”牌(可另選配置相近的其他品牌);
配置:IPC-610H IPC-610/PCA-6006LV/P4 3.0G/1024M /160G/ DVD+KB+MS+聲卡/網卡/19寸液晶顯示器
2、通訊模塊:德國“西門子”;
3、通訊卡:德國“西門子”;
4、監控軟件:“力控”組態軟件;
5、應用軟件:系統數據處理軟件
6、打印機:惠普打印機;
7、顯示器: 19″液晶顯示器;
(二)工控機主要功能:
1、能對所有試驗室內的試驗溫度、濕度、時間、CO2氣體濃度、SO2氣體濃度、NOx氣體濃度、淋雨周期進行實時顯示。
2、能設定輸入并控制試驗室溫度、濕度、淋雨周期、CO2氣體濃度、SO2、氣體濃度、NOx氣體濃度等參數。
3、能編制和存儲各試驗室的溫度、濕度的交變程序。
4、能以表格或曲線形式顯示、記錄和保存試驗室的溫度、濕度、CO2、 SO2和NOx氣體濃濃度等參數。
5、能顯示系統的故障、保護狀態等。
七、安全保護裝置:
7.1室體超溫報警;
7.2風機過電流報警;
7.3制冷壓縮機過熱報警;
7.4制冷壓縮機過電流報警;
7.5制冷壓縮機超電壓報警;
7.6電源缺相、相序報警。
八、能量節省的設計方案:
8.1加熱器分組控制,轉入恒定溫度、濕度時,加熱器切換為小功率,同時采用PID自動調節加熱器的功率輸出;
8.2濕熱試驗工況下,采用鍋爐加濕,盡可能減少帶入的附加熱量;
九、使用條件
9.1電源:AC380V±10%,50HZ,三相五線,配置帶漏電保護裝置的空氣開關
9.2使用環境:溫度:5℃~35℃,相對濕度:≤85%RH
十、設備的售后及隨機附件
10.1備品備件、專用工具及技術資料
10.2乙方提供質保期內為確保該設備安全、穩定、可靠運行所必需的備品備件(易損件)。
10.3乙方提供隨機專用工具。
10.4乙方提供操作使用說明書、結構總圖、電氣原理圖、結構示意圖,
設備配套的程序軟件,電器、機械接口參數,以及甲方為正確使用和維修該設備而要求賣方提供的其它有關資料。
十一、安裝、調試及驗收
11.1本設備由乙方負責安裝、調試,在設備到達甲方項目現場,且甲方通知乙方后15日內,乙方負責試驗設備安裝、調試完畢。
11.2在甲方項目現場進行正式驗收。
十二、售后服務
12.1賣方免費負責對買方的操作人員、維修人員進行技術培訓。一般培訓人數為2~3人,從設備開始調試直至培訓人員到會為止。
12.2整機保修壹年,終身維護。
12.3在需方遵守保管、使用和安裝規則的條件下,從驗收之日起壹年內設備因質量問題不能正常運行時,乙方接到通知后24小時內免費派人上門服務維修,超過保修期后乙方在設備發生質量問題時應優先給予解決,酌情收取材料費用。
十三、包裝及運輸
13.1包裝箱應用新的堅固材料制成,適用長途運輸、防潮、防銹、防震、防粗暴裝卸、適用于陸運和整體吊裝。
13.2運輸方式:汽車陸運,由賣方負責,運費(含保險)
十四、交貨期和交貨地點
14.1交貨期:90天
14.2交貨地點:用戶使用現場